Цената на фабриката за производство на кроасани в пловдивското село Скутаре продължава да се срива, след няколко неуспешни опита да бъде намерен купувач. Имотът отново е обявен за продажба от частен съдебен изпълнител, този път с начална цена 911 000 лева, което е драстичен спад спрямо първоначалната оценка.
Новата публична продан, която е обявен за първа поред след нова оценка, ще се проведе в периода от 13 декември 2025 г. до 13 януари 2026 г., а отварянето на наддавателните предложения е насрочено за 14 януари 2026 г.
Припомняме, че историята с продажбата на имота започна преди повече от година, когато фабриката бе пусната за първи път на търг с начална цена 1 560 400 лева – 80% от пазарната оценка тогава. Липсата на интерес обаче доведе до последователно намаляване на цената, докато днес тя вече е паднала с близо 650 000 лева, или над 40% спрямо първоначалния старт.
В момента фабриката се предлага за 911 000 лева (465 786,90 евро) – сума, която вече е под психологическата граница от 1 млн. лева и може да привлече инвеститори с интерес към хранително-вкусовата промишленост.
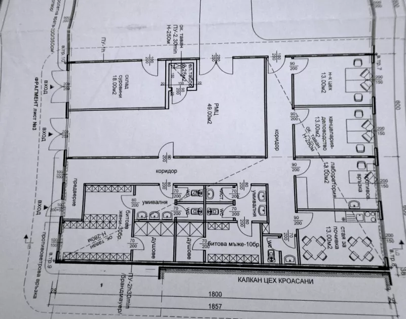
Предмет на публичната продан е цех за производство на кроасани, въведен в експлоатация през 2015 г., част от обект „Предприятие за производство на захарни изделия“. Производствената сграда е със застроена площ от 601 кв.м, разположена в имот с обща площ 9 556 кв.м, като включва два поземлени имота и допълнителна сграда – трафопост.
Фабриката разполага с напълно оборудвани обслужващи и производствени помещения – складове за суровини и готова продукция, санитарно-битов модул, административни офиси, помещение за нафтов резервоар, както и обособени участъци за подготовка, производство и опаковане на кроасани.
Сградата е собственост на „ФИЛ СУИЙТС“ ООД, докато земята и трафопостът са собственост на Георги Атанасов Русинов, който е и мажоритарен собственик в дружеството.
Имотът е обременен с редица тежести – възбрани в полза на НАП от 2022 г., както и в полза на взискателя „КАМ 919“ ООД, плюс договорни ипотеки в полза на ОББ, впоследствие цедирани. Справка в портала на НАП показва, че задълженията на дружеството към към приходната агенция в момента възлизат на 206 215 лева.
Всички тези фактори вероятно са сред основните причини фабриката да остава без купувач въпреки стратегическото си местоположение край Пловдив и напълно изградената инфраструктура. С всеки следващ търг обаче, цената на фабриката става все по-атрактивна, но и рискът за потенциалния купувач остава сериозен заради тежестите и задълженията. Дали сумата от 911 000 лева ще се окаже „дъното“ или ще последва ново намаление, ще стане ясно след средата на януари следващата година.
ЧСИ пуска на търг фабрика за кроасани край ПловдивСтартовата цена на базата е 1,2 млн лева
.webp)


.webp)
.webp)
.webp)
.webp)
Още от категорията
Виж всички
Кои са най-големите длъжници на НАП в Пловдив? 10 компании дължат над 113 милиона евро